Ferienhaus Thermoholz Camping-Fass
Ausgestattet mit 2 Bänken
| Modell | Thermoholz Camping-Fass, Ferienhaus Holz – Bausatz, ab Kircheib |
|---|---|
| Grundfläche | ca. 16 qm |
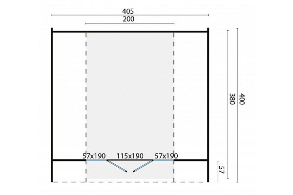
| Größe | 405 x 400 cm |
| Material | Holz |
| Wandstärke | 28/42 mm |
| Dachform | Runddach |
| Dacheindeckung | Bitumenschindeln (schwarz) inklusive |
| Fußboden | massive 42 mm Nut+Feder-Hobeldielen |
| Türen / Fenster | isolierverglast |
| Dach und Wände | 28 / 42 mm Blockbohlen mit Nut+Feder |
| Preis Bausatz | ab 11.795,- € |
Hinweis: Alle genannten Maße sind ca.-Angaben, die tatsächlichen Maße können geringfügig abweichen. Technische Änderungen und Modellanpassungen sind jederzeit möglich! Wenn nicht anders angegeben erfolgt der Verkauf stets ohne Zubehör / Dekoration.