Holz Ferienhaus Mecklenburg
| Modell | Mecklenburg, Ferienhaus Holz – Bausatz, ab Kircheib |
|---|---|
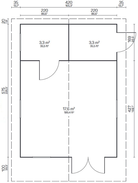
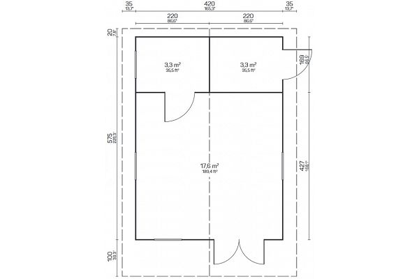
| Grundfläche | ca. 24 qm |
| Größe | 420 x 575 cm |
| Firsthöhe | ca. 279 cm |
| Material | Holz |
| Wandstärke | 70 mm |
| Bohlenstärke | 70 mm mit doppelter Nut+Feder |
| Dachform | Satteldach |
| Vordach | ca. 100 cm |
| Fußboden | 28 mm Nut+Feder-Hobeldielen |
| Türen | 1/2-verglaste Leimholz-Doppeltür ca. 143 x 196 cm, 1/2-verglaste Leimholz-Einzeltüren ca. 84 x 196 cm, jeweils ISO-verglast, mit Edelstahlschwelle, Drückergarnitur und Zylinderschloß |
| Fenster | 4 Stück je ca. 77 x 99 cm, ISO-verglast |
| Preis Bausatz | ab 14.432,- € |
Hinweis: Alle genannten Maße sind ca.-Angaben, die tatsächlichen Maße können geringfügig abweichen. Technische Änderungen und Modellanpassungen sind jederzeit möglich! Wenn nicht anders angegeben erfolgt der Verkauf stets ohne Zubehör / Dekoration.