Holz Ferienhaus Den Haag
| Modell | Den Haag, Ferienhaus Holz – Bausatz, ab Kircheib |
|---|---|
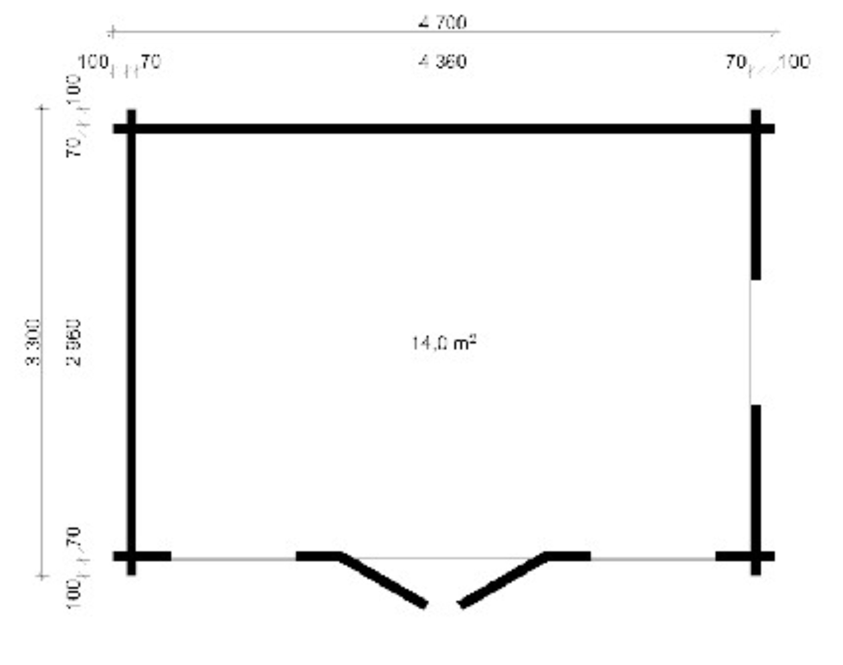
| Grundfläche | ca. 14 qm |
| Größe | 450 x 310 cm |
| Firsthöhe | ca. 306 cm |
| Material | Holz |
| Wandstärke | 70 mm |
| Bohlenstärke | 70 mm mit doppelter Nut+Feder |
| Dachform | Satteldach |
| Vordach | ca. 45 cm |
| Fußboden | 28 mm Nut+Feder-Hobeldielen |
| Türen | ISO-vollverglaste Leimholz-Doppeltür ca. 143 x 196 cm, mit Edelstahlschwelle, Drückergarnitur und Zylinderschloß |
| Fenster | 3 Stück Einzelfenster je ca. 87 x 121 cm, ISO-verglast |
| Preis Bausatz | ab 9.827,- € |
Hinweis: Alle genannten Maße sind ca.-Angaben, die tatsächlichen Maße können geringfügig abweichen. Technische Änderungen und Modellanpassungen sind jederzeit möglich! Wenn nicht anders angegeben erfolgt der Verkauf stets ohne Zubehör / Dekoration.