Holz Gartenhaus Hennef 2
Gartenhaus im Scheunen-Look
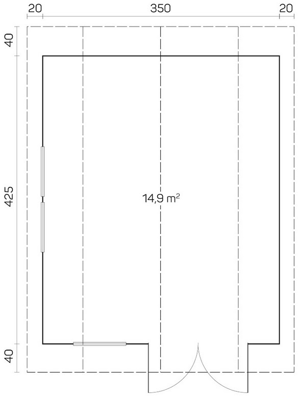
| Modell | Hennef 2, Gartenhaus Holz – Bausatz, ab Kircheib |
|---|---|
| Grundfläche | ca. 15 qm |
| Größe | 350 x 425 cm |
| Firsthöhe | ca. 302 cm |
| Material | Holz |
| Wandstärke | 40 mm |
| Bohlenstärke | 40 mm mit doppelter Nut+Feder |
| Dachform | Runddach |
| Vordach | ca. 40 cm |
| Fußboden | 18 mm Nut+Feder-Hobeldielen |
| Türen | 1/2-verglaste Leimholz-Doppeltür ca. 143 x 196 cm mit Doppelglas, Edelstahlschwelle, Drückergarnitur und Zylinderschloß |
| Fenster | Einzelfenster ca. 77 x 99 cm sowie Doppelfenster ca. 147 x 99 cm, jeweils mit Doppelglas |
| Preis Bausatz | ab 5.040,- € |
Hinweis: Alle genannten Maße sind ca.-Angaben, die tatsächlichen Maße können geringfügig abweichen. Technische Änderungen und Modellanpassungen sind jederzeit möglich! Wenn nicht anders angegeben erfolgt der Verkauf stets ohne Zubehör / Dekoration.