Holz Gartenhaus Siegburg
Stabiles Gartenhaus für jeden Zweck
| Modell | Siegburg, Gartenhaus Holz – Bausatz, ab Kircheib |
|---|---|
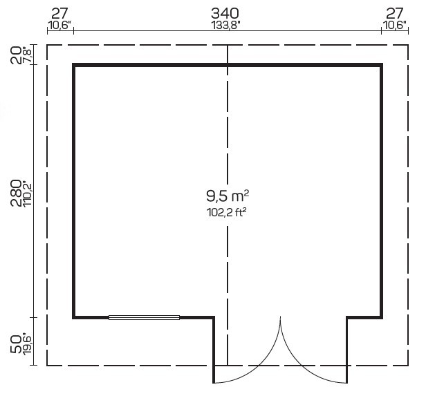
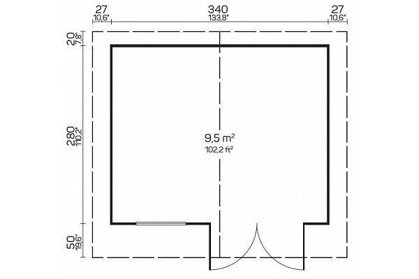
| Grundfläche | ca. 10 qm |
| Größe | 340 x 280 cm |
| Firsthöhe | ca. 257 cm |
| Material | Holz |
| Wandstärke | 40 mm |
| Bohlenstärke | 40 mm mit doppelter Nut+Feder |
| Dachform | Satteldach |
| Vordach | ca. 50 cm |
| Fußboden | 18 mm Nut+Feder-Hobeldielen |
| Türen | 1/2-verglaste Leimholz-Doppeltür ca. 143 x 196 cm mit Doppelglas, Edelstahlschwelle, Drückergarnitur und Zylinderschloß |
| Fenster | ca. 77 x 99 cm mit Doppelglas |
| Preis Bausatz | ab 3.225,- € |
Hinweis: Alle genannten Maße sind ca.-Angaben, die tatsächlichen Maße können geringfügig abweichen. Technische Änderungen und Modellanpassungen sind jederzeit möglich! Wenn nicht anders angegeben erfolgt der Verkauf stets ohne Zubehör / Dekoration.