Garage Blockbohlen Kombi-Carport 2
Kombination aus Gartenhaus und Doppel-Carport
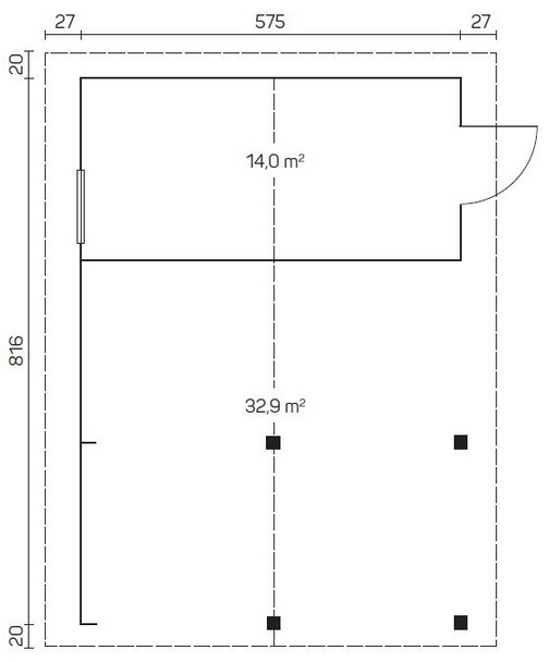
| Modell | Kombi-Carport 2, Carports Garagen Garage Blockbohlen – Bausatz, ab Kircheib |
|---|---|
| Grundfläche | ca. 45 qm |
| Größe | 816 x 575 cm |
| Firsthöhe | ca. 302 cm |
| Seitenwandhöhe | ca. 228 cm |
| Material | Holz |
| Wände | massive 70 mm Blockbohle mit doppelter Nut + Feder |
| Wandstärke | 70 mm |
| Dachform | Satteldach |
| Dach | 18 mm Nut- u. Federbretter auf Dachsparren |
| Türen | 1/2-verglaste Leimholz-Einzeltür mit Zylinderschloss und Drückergarnitur |
| Fenster | Einzelfenster ca. 92 x 42 cm |
| Dachüberstand | 20/27 cm |
| Preis Bausatz | ab 15.325,- € |
Hinweis: Alle genannten Maße sind ca.-Angaben, die tatsächlichen Maße können geringfügig abweichen. Technische Änderungen und Modellanpassungen sind jederzeit möglich! Wenn nicht anders angegeben erfolgt der Verkauf stets ohne Zubehör / Dekoration.
Dieses Modell kann in der Ausstellung besucht werden.
Dieses Modell kann in der Ausstellung besucht werden.