Holz Carport Max 3
Flachdach-Carport
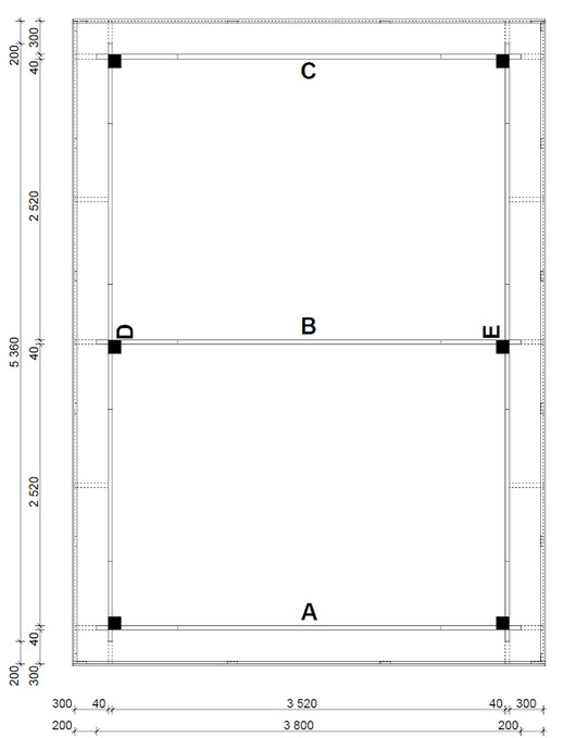
| Modell | Max 3, Carports Garagen Carport Holz – Bausatz, ab Kircheib |
|---|---|
| Grundfläche | ca. 19 qm |
| Größe | 360 x 516 cm |
| Firsthöhe | 286 cm |
| Seitenhöhe | 240 cm |
| Material | Holz |
| Wandstärke | 40 mm |
| Dachform | Flachdach+Pultdach |
| Dach | 18 mm Nut+Federbrett-Dachschalung |
| Pfosten | starke 12 x 12 cm Pfosten |
| Preis Bausatz | ab 3.043,- € |
Hinweis: Alle genannten Maße sind ca.-Angaben, die tatsächlichen Maße können geringfügig abweichen. Technische Änderungen und Modellanpassungen sind jederzeit möglich! Wenn nicht anders angegeben erfolgt der Verkauf stets ohne Zubehör / Dekoration.